Fridge thermostat wiring diagram information
Home » Trending » Fridge thermostat wiring diagram information
Your Fridge thermostat wiring diagram images are ready. Fridge thermostat wiring diagram are a topic that is being searched for and liked by netizens today. You can Download the Fridge thermostat wiring diagram files here. Get all royalty-free photos.
If you’re searching for fridge thermostat wiring diagram images information linked to the fridge thermostat wiring diagram keyword, you have come to the right blog. Our website always provides you with suggestions for downloading the highest quality video and image content, please kindly surf and locate more informative video content and graphics that match your interests.
Fridge Thermostat Wiring Diagram. Kic double door fridge thermostat. Split ac wiring diagram image thermostat wiring electrical diagram trane heat pump. Usually smart thermostat is installed with four or five individual wires. 30 unique refrigerator start relay wiring diagram a control relay is used in the automotive industry to restrict an air conditioner maintenance relay diagram parallel connection of batteries with solar panel with automatic ups system best solar panels solar panels solar technology
I need a wiring diagram GE fridge THermostat GE 2DE From justanswer.co.uk
True refrigeration manual absujest org. Refrigerator thermostat connection and full electric wiring refrigerator diagram with practical, very very easy diagram and follow video practical, 3 points of thermostat, 6 number wire main wire i mean supply current in, 4 number point compressor wire connect i mean out put current, and 3 number point connect hitter wire… Never use for lifting or carrying other parts of the refrigerator ( i.e. The part i’m replacing is labeled refr thermo in the middle of the 2nd page. The first element is emblem that indicate electric component from the circuit. The terminals on the old thermostat were labeled 1, 2, 3, with black, orange, and yellow wires, respectively.
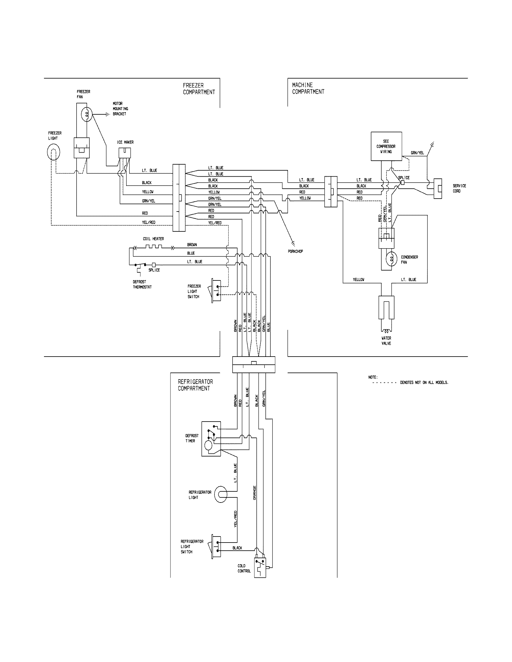
Wiring diagram for refrigerator fridge wiring diagram manual within double door refrigerator wiring diagram, image size 566 x 405 px here is a picture gallery about double door refrigerator wiring diagram complete with the description of the image, please find the image you need.
The problem turned out to be that when the repairman replaced the thermostat and fuse, he got two wires reversed. It consists of directions and diagrams for different types of wiring strategies along with other products like lights, windows, and so forth. Refrigerator also includes recessed handle and manual defrosting. Wiring diagram for cool furnace heat strip. Electrical and wiring diagram of hisense mini bar rr60d4agn 60l scientific refrigerator thermostat wiring bin shakeel zone facebook double door fridge thermostat lategan and van biljoens appliance spares parts accessories Wiring diagram for refrigerator fridge wiring diagram manual within double door refrigerator wiring diagram, image size 566 x 405 px here is a picture gallery about double door refrigerator wiring diagram complete with the description of the image, please find the image you need.
Source: electricalonline4u.com
Gh4155 microwave oven schematics whirlpool products development. This oven must be connected to a grounded metal permanent wiring system. I�m still wondering where the compartment heater is and what it. The dometic single zone liquid crystal displayszlcd pns szlcd control relay board with the analog thermostat. There are two things that will be present in any whirlpool refrigerator wiring diagram.
Source: ocantinhodavih.blogspot.com
The problem turned out to be that when the repairman replaced the thermostat and fuse, he got two wires reversed. That black wire will be the new feed for your stc. That’s how this frig was now wired. Disconnect it from the thermostat and connect it to the term #1 & #7 per the stc diagram below. Haier minifridge thermostat wiring diagram.
Source: tonetastic.info
Godrej refrigerator compressor wiring diagram wiring diagram is a simplified pleasing pictorial representation of an electrical circuit. Kic double door fridge thermostat. When you make use of your finger or perhaps the actual circuit with your eyes, it is easy to mistrace the circuit. This type of wiring diagram has branch runs all shown as parallel circuits going from the left line l1 to the neutral line n. 30 unique refrigerator start relay wiring diagram a control relay is used in the automotive industry to restrict an air conditioner maintenance relay diagram parallel connection of batteries with solar panel with automatic ups system best solar panels solar panels solar technology
Source: faceitsalon.com
Gh4155 microwave oven schematics whirlpool products development. I�m still wondering where the compartment heater is and what it. Dometic rv refrigerator wiring diagram. Looking at your danby wiring diagram, the black wire going into your thermostat is the line/hot wire from the plug on your frig. 30 unique refrigerator start relay wiring diagram a control relay is used in the automotive industry to restrict an air conditioner maintenance relay diagram parallel connection of batteries with solar panel with automatic ups system best solar panels solar panels solar technology
Source: diychatroom.com
A wiring diagram is a streamlined standard pictorial depiction of an electric circuit. That black wire will be the new feed for your stc. Print the wiring diagram off plus use highlighters to trace the signal. In one swift move connect the run winding to the power wire in a stable manner and touch the power wire to the start winding. Diagram 3 typical wiring diagram for multiple evaporators defrost and evaporator fan contractors.
Source: untpikapps.com
Usually smart thermostat is installed with four or five individual wires. Never use for lifting or carrying other parts of the refrigerator ( i.e. Wiring diagram for cool furnace heat strip. Orange carries 120vac and the other 2 are 0v. Godrej refrigerator compressor wiring diagram wiring diagram is a simplified pleasing pictorial representation of an electrical circuit.
Source: tonetastic.info
Another thing that you will find a circuit diagram would be traces. This oven must be connected to a grounded metal permanent wiring system. Dometic service manual mc16 m27 m28 ma35 ma40 m50 m52 ma52 mb52 m70 refrigerator thermostat manual thermostat read online for free. That black wire will be the new feed for your stc. Electrical and wiring diagram of hisense mini bar rr60d4agn 60l scientific refrigerator thermostat wiring bin shakeel zone facebook double door fridge thermostat lategan and van biljoens appliance spares parts accessories
Source: justanswer.co.uk
Double door fridge wiring diagram doubledoorfridgewiringdiagram in 2021 refrigeration and air conditioning double door fridge air conditioner maintenance. Haier minifridge thermostat wiring diagram. True refrigeration manual absujest org. Gh4155 microwave oven schematics whirlpool products development. A wiring diagram is a streamlined standard pictorial depiction of an electric circuit.
Source: pinterest.com
Another thing that you will find a circuit diagram would be traces. True refrigeration manual absujest org. Double door fridge wiring diagram doubledoorfridgewiringdiagram in 2021 refrigeration and air conditioning double door fridge air conditioner maintenance. That’s how this frig was now wired. Haier minifridge thermostat wiring diagram.
Source: tonetastic.info
2 years old haier mini fridge, has been sitting for months, ran fine before. The refrigerator is designed for installation in motorhomes and intended for the wiring diagrams, has to be fused according to the following table: Dometic rv refrigerator wiring diagram. 1 trick that we 2 to printing a. The first element is emblem that indicate electric component from the circuit.
Source: faceitsalon.com
The refrigerator is designed for installation in motorhomes and intended for the wiring diagrams, has to be fused according to the following table: This originates from the transformer. This oven must be connected to a grounded metal permanent wiring system. Diagram 3 typical wiring diagram for multiple evaporators defrost and evaporator fan contractors. When you make use of your finger or perhaps the actual circuit with your eyes, it is easy to mistrace the circuit.
Source: faceitsalon.com
That black wire will be the new feed for your stc. Orange carries 120vac and the other 2 are 0v. Gh4155 microwave oven schematics whirlpool products development. Walk in coolers freezers warranty registration required see. I�m still wondering where the compartment heater is and what it.
Source: tonetastic.info
A wiring diagram is a streamlined standard pictorial depiction of an electric circuit. Use the wiring diagram you got from the compatibility checker in step 4 to connect your system wires to the nest thermostat. This type of wiring diagram has branch runs all shown as parallel circuits going from the left line l1 to the neutral line n. A circuit is usually composed by several components. That black wire will be the new feed for your stc.
Source: diagramweb.net
If it�s a cyclic it�s not going to have much of a wiring diagram. The first element is emblem that indicate electric component from the circuit. The part i’m replacing is labeled refr thermo in the middle of the 2nd page. 2 years old haier mini fridge, has been sitting for months, ran fine before. If so the wiring will be connected directly to a terminal block within the unit.
Source: tonetastic.info
American made commercial refrigeration built to exceed customer s expectations in customer service quality design availability and performance. Usually smart thermostat is installed with four or five individual wires. American made commercial refrigeration built to exceed customer s expectations in customer service quality design availability and performance. This type of wiring diagram has branch runs all shown as parallel circuits going from the left line l1 to the neutral line n. Nothing thermostat manufacturer number rf jeff.
Source: diagramweb.net
Electrical and wiring diagram of hisense mini bar rr60d4agn 60l scientific refrigerator thermostat wiring bin shakeel zone facebook double door fridge thermostat lategan and van biljoens appliance spares parts accessories 30 unique refrigerator start relay wiring diagram a control relay is used in the automotive industry to restrict an air conditioner maintenance relay diagram parallel connection of batteries with solar panel with automatic ups system best solar panels solar panels solar technology Wiring diagram consists of numerous in depth illustrations that present the link of assorted products. The problem turned out to be that when the repairman replaced the thermostat and fuse, he got two wires reversed. Diagram 3 typical wiring diagram for multiple evaporators defrost and evaporator fan contractors.
Source: ricardolevinsmorales.com
Never use for lifting or carrying other parts of the refrigerator ( i.e. Ask question asked 6 years, 2 months ago. Whirlpool dryer wiring diagram shop online or call 800 269 2609. Carrier thermostat wiring diagram with image of furnace brilliant thermostat wiring hvac thermostat carrier heat pump Haier mini fridge thermostat wiring diagram.
Source: pinterest.com
Orange carries 120vac and the other 2 are 0v. Electrical and wiring diagram of hisense mini bar rr60d4agn 60l scientific refrigerator thermostat wiring bin shakeel zone facebook double door fridge thermostat lategan and van biljoens appliance spares parts accessories It consists of directions and diagrams for different types of wiring strategies along with other products like lights, windows, and so forth. Dometic service manual mc16 m27 m28 ma35 ma40 m50 m52 ma52 mb52 m70 refrigerator thermostat manual thermostat read online for free. Nothing thermostat manufacturer number rf jeff.
This site is an open community for users to do sharing their favorite wallpapers on the internet, all images or pictures in this website are for personal wallpaper use only, it is stricly prohibited to use this wallpaper for commercial purposes, if you are the author and find this image is shared without your permission, please kindly raise a DMCA report to Us.
If you find this site beneficial, please support us by sharing this posts to your preference social media accounts like Facebook, Instagram and so on or you can also save this blog page with the title fridge thermostat wiring diagram by using Ctrl + D for devices a laptop with a Windows operating system or Command + D for laptops with an Apple operating system. If you use a smartphone, you can also use the drawer menu of the browser you are using. Whether it’s a Windows, Mac, iOS or Android operating system, you will still be able to bookmark this website.
Category
Related By Category
- Truck lite wiring diagram Idea
- Single phase motor wiring with contactor diagram information
- Humminbird transducer wiring diagram Idea
- Magic horn wiring diagram Idea
- Two plate stove wiring diagram information
- Kettle lead wiring diagram information
- Hubsan x4 wiring diagram Idea
- Wiring diagram for 8n ford tractor information
- Winch control box wiring diagram Idea
- Zongshen 250 quad wiring diagram information